
The ULTRA II Series of homes are designed and engineered to address the real world issues of fire, hilly terrain, mold and pests while reducing environmental and build-site impact.
This is accomplish by utilizing pile elevated steel construction which also results in a tremendous reduction in construction waste to landfills and
makes energy efficient Ultra Series homes part of a sustainable future.

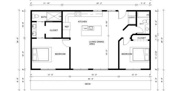
The Dwell Ultra II is a stunning modern home featuring 2 bedrooms and 2 baths. Its inviting open central living space boasts ceilings up to 10 feet high. The spacious primary bedroom includes a zero-entry ensuite shower, space-saving soft open and close pocket doors, a walk-in closet, and a double vanity. The secondary bedroom is also spacious, with a large sliding glass door accessing the deck. The guest bathroom features a large tub-shower combination.

The exterior of all Dwell Ultra homes features premium quality architectural metal available in a variety of styles, colors, and finishes. This fully non-combustible exterior is virtually maintenance-free and includes an extremely durable PVDF coating with a 35-year manufacturer's warranty.

The interiors are designed to create an open and airy environment, illuminated by light streaming through expansive sliding glass doors that open onto the deck. The choice of interior finishes, colors, textures, and level of luxury is entirely yours, whether you prefer a quality, budget-friendly home or aim to make a dramatic design statement.

All Dwell Ultra homes are constructed with structural standing seam metal roofing, the ultimate choice for a long-lasting, leak-free roof with virtually no maintenance, resulting in the lowest overall cost of ownership. The non-combustible roof has no fastener penetrations and features an extremely durable PVDF finish, typically accompanied by a 35-year manufacturer's warranty. The standing seam design also allows for clamp-on solar mounting, ensuring your roof remains uncompromised by fastener penetrations.

The elevated concrete deck is supported by the same pier and steel beam design as the home’s foundation. The deck surface can feature a stamped finish, such as a rustic wood planking design, while the contemporary railing system completes the modern look. The deck is virtually maintenance-free and non-combustible, ensuring durability and safety.